Vente Immeuble
les alluets le roi
265 700 € *
Prix : 265 700 € *
* Les honoraires d'agence seront intégralement à la charge du vendeur
* Les honoraires d'agence seront intégralement à la charge du vendeur
Description
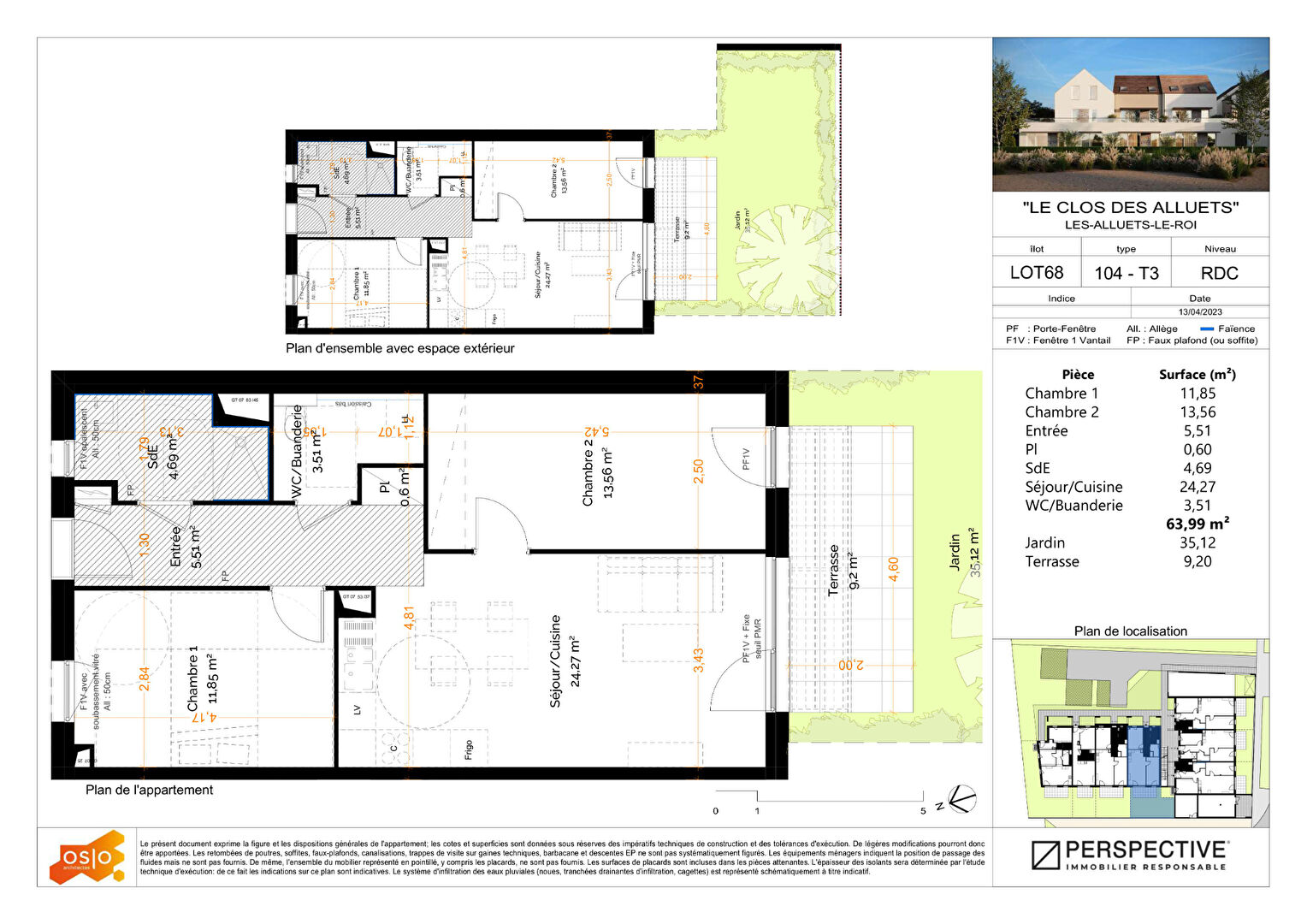
LES ALLUETS LE ROIProgramme neuf (loi PINEL) :
Quatorze lots d'habitation de type F3 à F5 chacun avec extérieur.
A partir de 265.700€-, hors prix du parking (une place minimum à prévoir, extérieure ou en sous-sol).
Pour tout renseignement, nous contacter.
Les informations sur les risques auxquels ce bien est exposé sont disponibles sur le site Géorisques www.georisques.gouv.fr
Réf 4562
Dpe
Bien non soumis au DPE
Localisation
Référence 4562 |